Sac Yaprak Menteşe Nedir?
Sac yaprak menteşeler, fonksiyonelliği ve dayanıklılığı bir araya getiren ürünlerdir. İnce ancak sağlam yapısı sayesinde hafif uygulamalarda dahi etkili performans gösterir. Kapılardan mobilyalara kadar çok çeşitli alanlarda kullanım imkânı sunar.
Uzun Yaprak Menteşe Nedir ve Nerelerde Kullanılır?
Uzun yaprak menteşe, özellikle büyük ve ağır kapılar için tasarlanmıştır. Uzun yapısı, montaj sırasında geniş bir yüzey sağlar ve kapıya olan yükü eşit bir şekilde dağıtır. Bu menteşeler, uzun ömürlü olmaları ve farklı tasarımlara uyum sağlamaları ile öne çıkar.
Uzun yaprak menteşeler, genellikle depo kapıları, endüstriyel alanlardaki büyük giriş kapıları ve yangın kapıları gibi geniş alanlarda tercih edilir. Yüksek taşıma kapasitesi sayesinde ağır iş yüklerinde etkili bir çözümdür.
Sac Yaprak Menteşe Çeşitleri
- Uzun yaprak menteşe, büyük ve ağır kapılar için güçlü bir çözüm sunar
- Kısa yaprak menteşe, daha küçük ve hafif kapılar için ideal bir seçenektir.
- Dekoratif menteşeler, estetik tasarımları ile mobilya ve iç mekan projelerine uyum sağlar.
- Paslanmaz menteşeler, nemli ve dış mekan koşullarına dayanıklılık sağlar.
İç ve Dış Mekânlar İçin Sac Yaprak Menteşe Modelleri
Sac yaprak menteşeler sadece iç mekanlarda değil, aynı zamanda dış mekanlarda da rahatlıkla kullanılabilmektedir. Paslanmaz veya galvaniz kaplama seçenekleri, menteşeleri nem ve korozyona karşı korur.
Yaprak Menteşe Ölçüleri Nasıl Belirlenir?
Doğru Yaprak Menteşe Ölçüsünü Seçmenin Önemi
Yaprak menteşe ölçüleri, monte edilecek kapının ağırlığı, büyüklüğü ve kullanım sıklığına göre belirlenmelidir. Yanlış ölçü seçimi menteşenin performansını düşürebilir ve kullanım ömrünü kısaltabilir.
Çelik ve Sac Yaprak Menteşe Ölçüleri Hakkında Detaylar
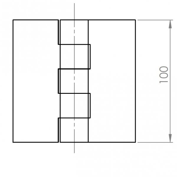
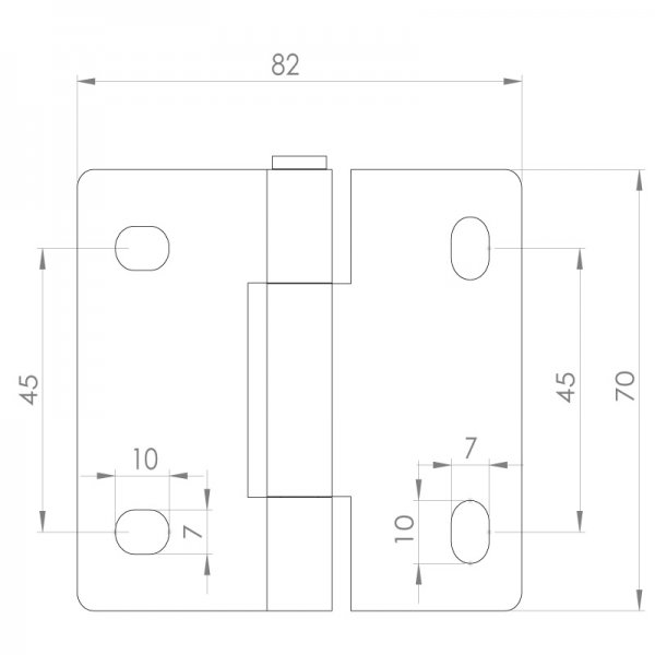
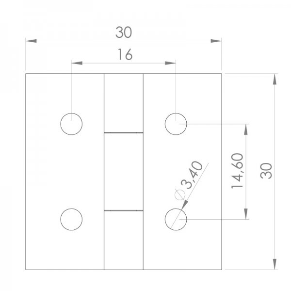
Sac yaprak menteşelerin ölçüleri genellikle milimetre cinsinden ifade edilir. Standart ölçüler arasında 100 mm, 150 mm ve 200 mm gibi seçenekler yer alır. Ancak ihtiyaca özel ölçülerde üretim de mümkündür.
Sac Yaprak Menteşe Kullanım Alanları
Kapılar İçin Sac Yaprak Menteşe Çözümleri
Sac yaprak menteşeler, ev içindeki oda kapılarından ticari alanlardaki endüstriyel kapılara kadar geniş bir kullanım alanına sahiptir. Hafif tasarımı ile kolay montaj imkânı sunar.
Mobilya ve Aksesuar Uygulamalarında Sac Yaprak Menteşe
Mobilya menteşesi olarak kullanılan sac yaprak menteşeler, özellikle dekoratif ve minimalist bir görünüm sunar. Çeşitli kaplama seçenekleri ise estetik açıdan farklı beklentilere yanıt verir.
Sac Yaprak Menteşe Uygulama Yerleri
Pano Kapakları ✔
Makina Kapakları ✔
Düz ve Hafif Kapaklar ✔
Mobilya menteşesi✔
Ev Oda kapıları✔
Endüstriyel kapılar✔
Sac Yaprak Menteşe Seçerken Dikkat Edilmesi Gerekenler
Kaliteli Sac Yaprak Menteşe Nasıl Anlaşılır?
Bir sac yaprak menteşenin kalitesini anlamak için malzemenin sağlamlığı, kaplama türü ve menteşenin işçilik detayları incelenmelidir. Paslanmaya dayanıklı kaplama ve pürüzsüz bir yüzey kalite göstergesidir.
Uzun Ömürlü Kullanım İçin Doğru Menteşe Seçimi
Uzun yaprak menteşe veya kısa yaprak menteşe arasından seçim yaparken kapılarınızın ağırlığını ve kullanım sıklığını göz önünde bulundurun. Doğru seçim, hem uzun ömürlü kullanımı garanti eder hem de maliyet avantajı sağlar.
Sac Yaprak Menteşe Kullanımı Ekonomik mi?
Evet, sac yaprak menteşeler hafif ve dayanıklı olmaları nedeniyle uzun ömürlü bir çözüm sunar. Bu da bakım maliyetlerini azaltır.
Uzun Yaprak Menteşe Nerelerde Daha Avantajlıdır?
Uzun yaprak menteşe, yüksek ağırlık taşıma kapasitesi ile ağır kapıların rahatlıkla kullanılmasını sağlar. Depo ve sanayi kapıları gibi uygulamalarda oldukça avantajlıdır.
Yaprak Menteşe Ölçüleri Standart mı?
Yaprak menteşe ölçüleri genellikle standart olarak üretilse de, ihtiyaca uygun özel ölçülerde menteşe üretimi de yapılabilir.
Sac yaprak menteşelerin sağlamlığı, estetik çeşitliliği ve ekonomikliğini keşfetmek için hemen ürün yelpazesine göz atabilirsiniz. İhtiyacınıza uygun modellerle projelerinizi güçlendirin!
